Mr. Ravi Shanker’s Residence

  1. Home
  2. Project
  3. Mr. Ravi Shanker’s Residence

Madhavam Residence

The Madhavam Residence is a thoughtfully designed contemporary home that perfectly blends functional architecture with aesthetic elegance.

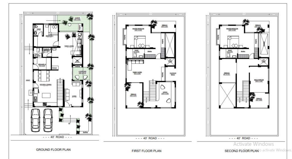
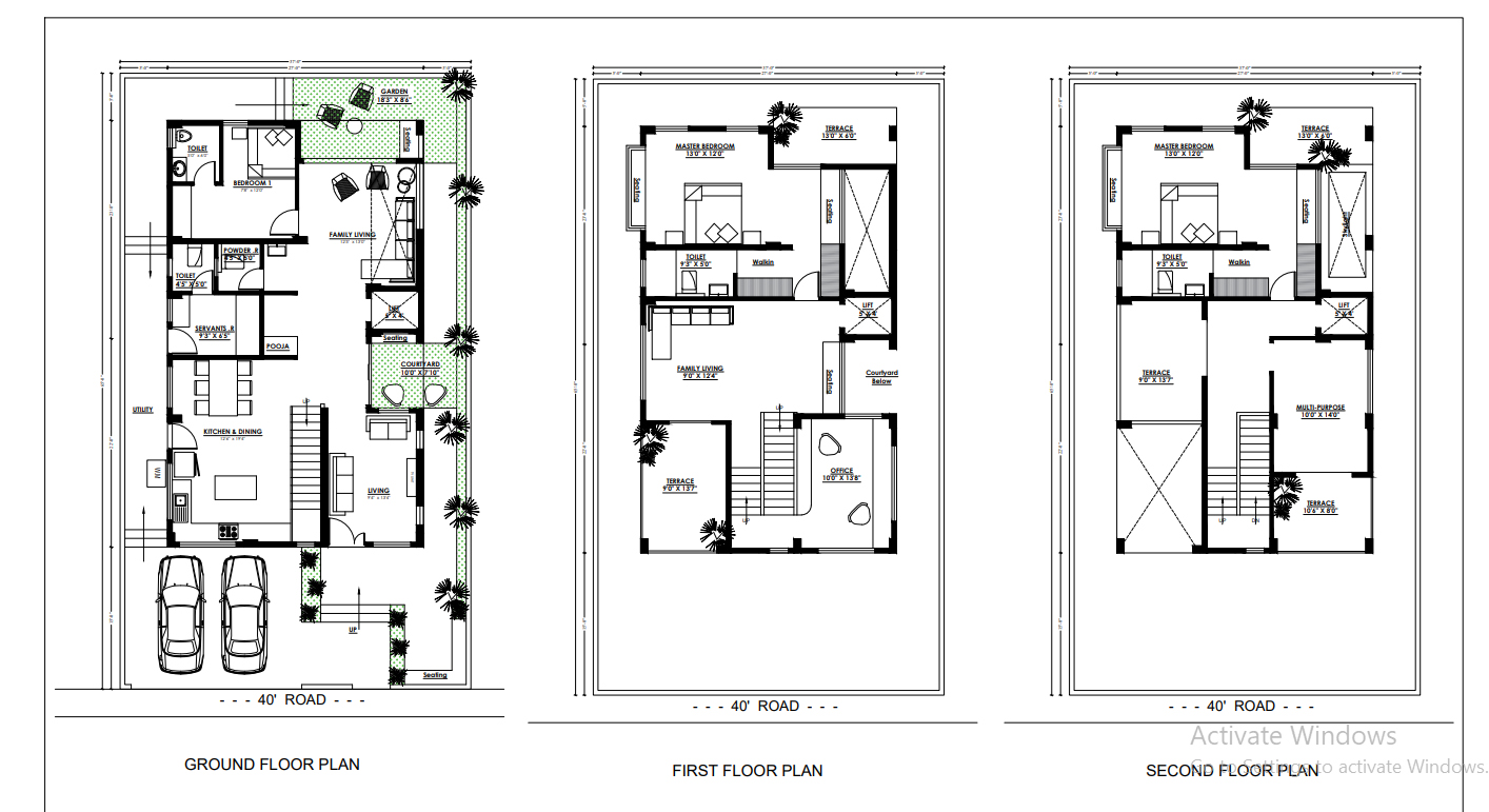
This beautifully planned 3-floor residence for Mr. Ravi Shanker stands as a testament to PR Constructions’ commitment to quality, space optimization, and functional luxury. Located in the peaceful neighborhood of Maheshwaram, this 3,500 sq. ft. home is a perfect blend of traditional comfort and modern convenience.

Key Features:

Ground Floor:

First Floor:

Second Floor:

project gallery

Client Testimonial:

“PR Constructions turned our dream into a reality with precise execution, thoughtful design, and a hassle-free experience from day one.” — Mr. Ravi Shanker

location

Maheshwaram, Hyderabad

Status

Completed

Buildup Area

3,500 Sq. Ft.

Client Name

Mr. Ravi Shanker

Madhavam Residence

The Madhavam Residence is a thoughtfully designed contemporary home that perfectly blends functional architecture with aesthetic elegance.