Mr. Ravi Shanker’s Residence
This beautifully planned 3-floor residence for Mr. Ravi Shanker stands as a testament to PR Constructions’ commitment to quality,

This beautifully planned 3-floor residence for Mr. Ravi Shanker stands as a testament to PR Constructions’ commitment to quality,
This exquisite luxury villa in Maheshwaram stands as a testament to PR Constructions’ commitment to architectural elegance,
The Madhavam Residence is a thoughtfully designed contemporary home that perfectly blends functional architecture with aesthetic elegance.
This luxurious 3-floor residence, currently under construction for Mr. Vipanchith Reddy in Maheshwaram..
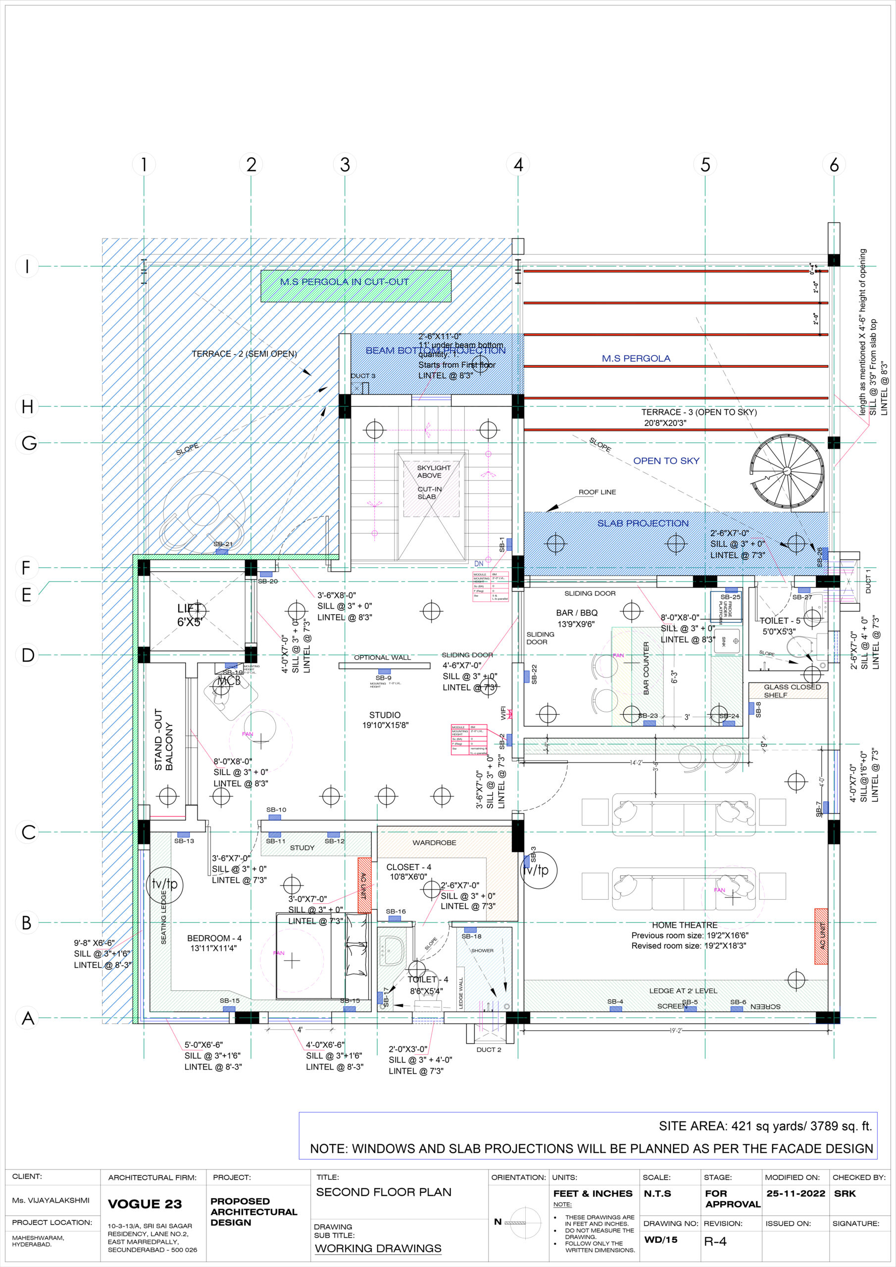
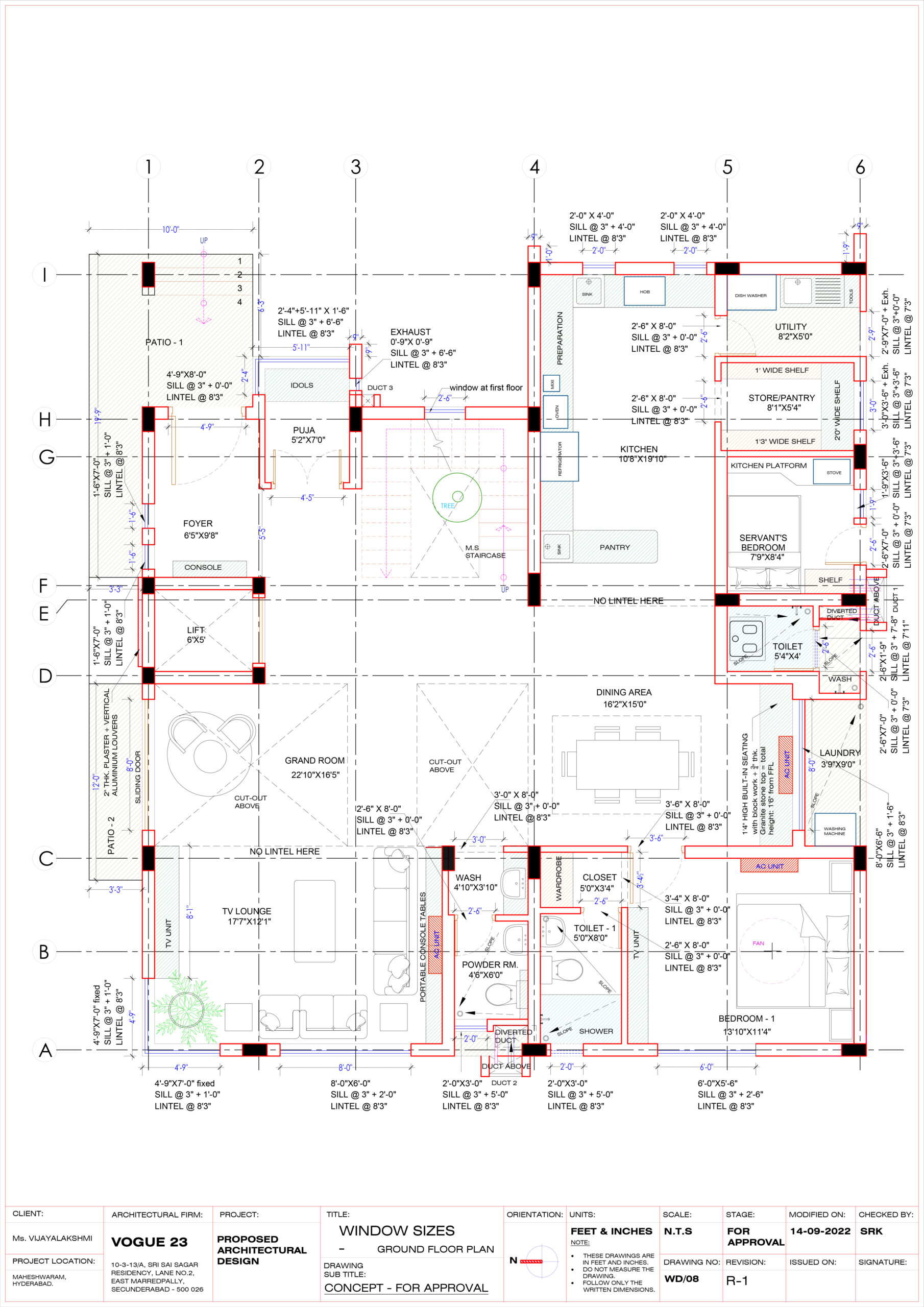
This exquisite luxury villa in Maheshwaram stands as a testament to PR Constructions’ commitment to architectural elegance, smart functionality, and robust engineering. Spread across 6,300 square feet, this G+2 home was custom-designed for Mr. P. Ramu to reflect a modern lifestyle blended with comfort and sophistication.
Ground Floor features include a large grand room, TV lounge, dining area, a spacious bedroom with attached bath, utility and laundry spaces, a puja room, patio spaces, and dedicated servant quarters. Every inch is crafted for privacy, utility, and seamless movement.
First Floor boasts multiple bedrooms, walk-in wardrobes, attached bathrooms, balconies, and a private office room — all interconnected with a family lounge for elevated living comfort.
Second Floor is a perfect leisure zone with a home theatre, studio space, an entertainment bar/BBQ area, and multiple open terraces with M.S. pergolas enhancing aesthetics and airflow.
A 6’x6’ lift seamlessly connects all floors, ensuring ease for elderly residents.
location
Maheshwaram, Hyderabad
Status
Completed
Built-up Area
6,300 Sq. Ft.
Client Name
Mr. P. Ramu
This beautifully planned 3-floor residence for Mr. Ravi Shanker stands as a testament to PR Constructions’ commitment to quality,
This exquisite luxury villa in Maheshwaram stands as a testament to PR Constructions’ commitment to architectural elegance,
The Madhavam Residence is a thoughtfully designed contemporary home that perfectly blends functional architecture with aesthetic elegance.
This luxurious 3-floor residence, currently under construction for Mr. Vipanchith Reddy in Maheshwaram..
We’re with you even after handover — our post-construction support ensures lasting peace of mind.