Madhavam Residence – A Modern Family Haven

  1. Home
  2. Project
  3. Madhavam Residence

Madhavam Residence

The Madhavam Residence is a thoughtfully designed contemporary home that perfectly blends functional architecture with aesthetic elegance.

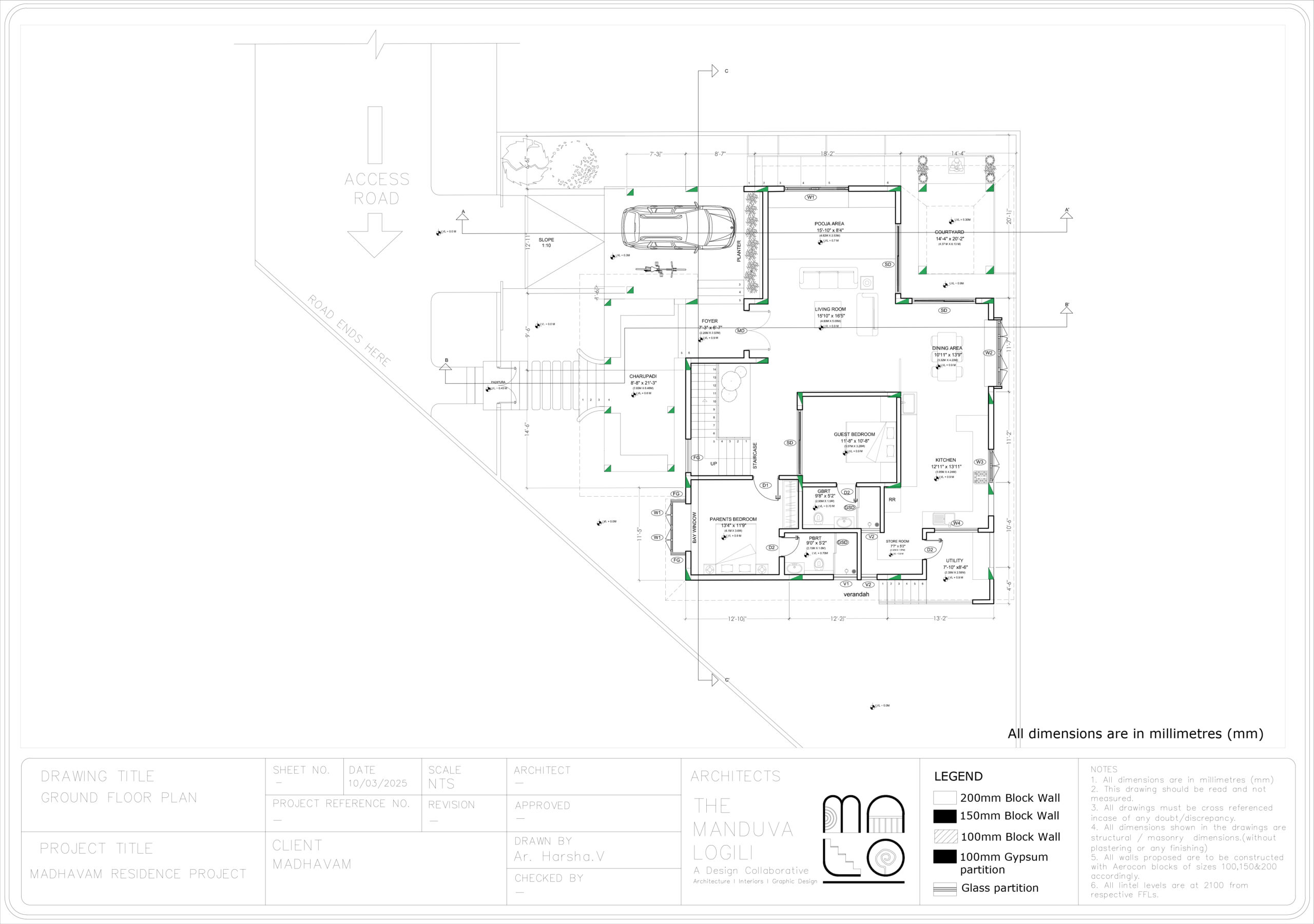
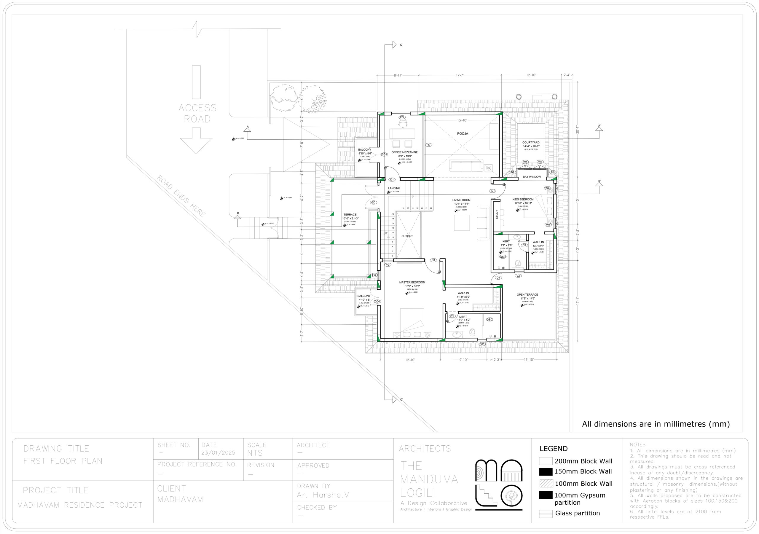
The Madhavam Residence is a thoughtfully designed contemporary home that perfectly blends functional architecture with aesthetic elegance. Spread across a 3,800 sq. ft. built-up area, this G+1 villa is tailored for comfort, privacy, and modern-day living.

Key Highlights:

  • Ground Floor: Includes a spacious guest bedroom with attached bath, parents’ bedroom, living room, pooja area, large dining space, kitchen with utility, and separate servant zone — all planned around natural light and ventilation.

  • First Floor: Features a luxurious master bedroom with walk-in closet, kids’ bedroom, office mezzanine, courtyard sit-out, and pooja space that anchors the floor spiritually and spatially.

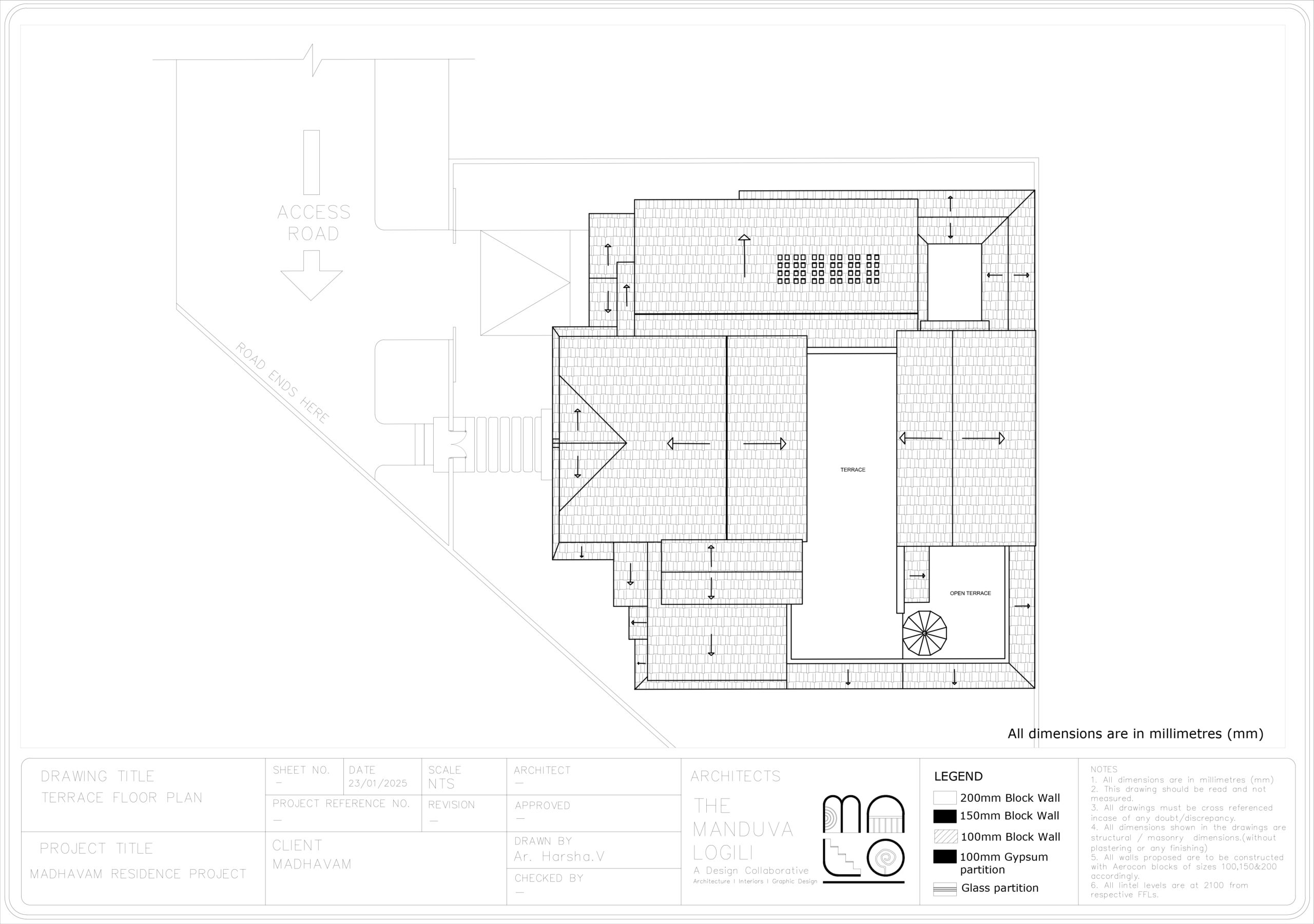
  • Terrace Floor: Designed with ample open terrace space for gatherings, activities, and passive recreation, along with a spiral staircase for vertical connectivity.

Design Intent:

A Design Collaborative, this residence respects site orientation and spatial flow. From ergonomic layouts to designated functional areas, it offers a holistic living environment for Mr. Raghuram’s family.

Construction By: PR Constructions – Delivering quality and excellence with every brick laid.

project gallery

location

Maheshwaram, Hyderabad

Status

Ongoing Project

Built-up Area

3,800 Sq. Ft.

Client Name

Mr. Raghuram

Call Support Center 24/7

+1 809 120 6705

Write To Us

info@domain.com

Contact us

Get in touch with us

    Madhavam Residence

    The Madhavam Residence is a thoughtfully designed contemporary home that perfectly blends functional architecture with aesthetic elegance.