MBR educational society

  1. Home
  2. Project
  3. MBR educational society

Madhavam Residence

The Madhavam Residence is a thoughtfully designed contemporary home that perfectly blends functional architecture with aesthetic elegance.

This project represents a state-of-the-art educational infrastructure designed to meet modern academic standards. The school building is a G+4 structure, meticulously planned to optimize space utilization, natural ventilation, and structural efficiency.

Level – I (First Floor Plan)

  • Designed to accommodate classrooms, laboratories, and staff areas.

  • Central corridors ensure smooth circulation and easy access to all rooms.

  • Staircases and lift cores are strategically positioned for safety and accessibility.

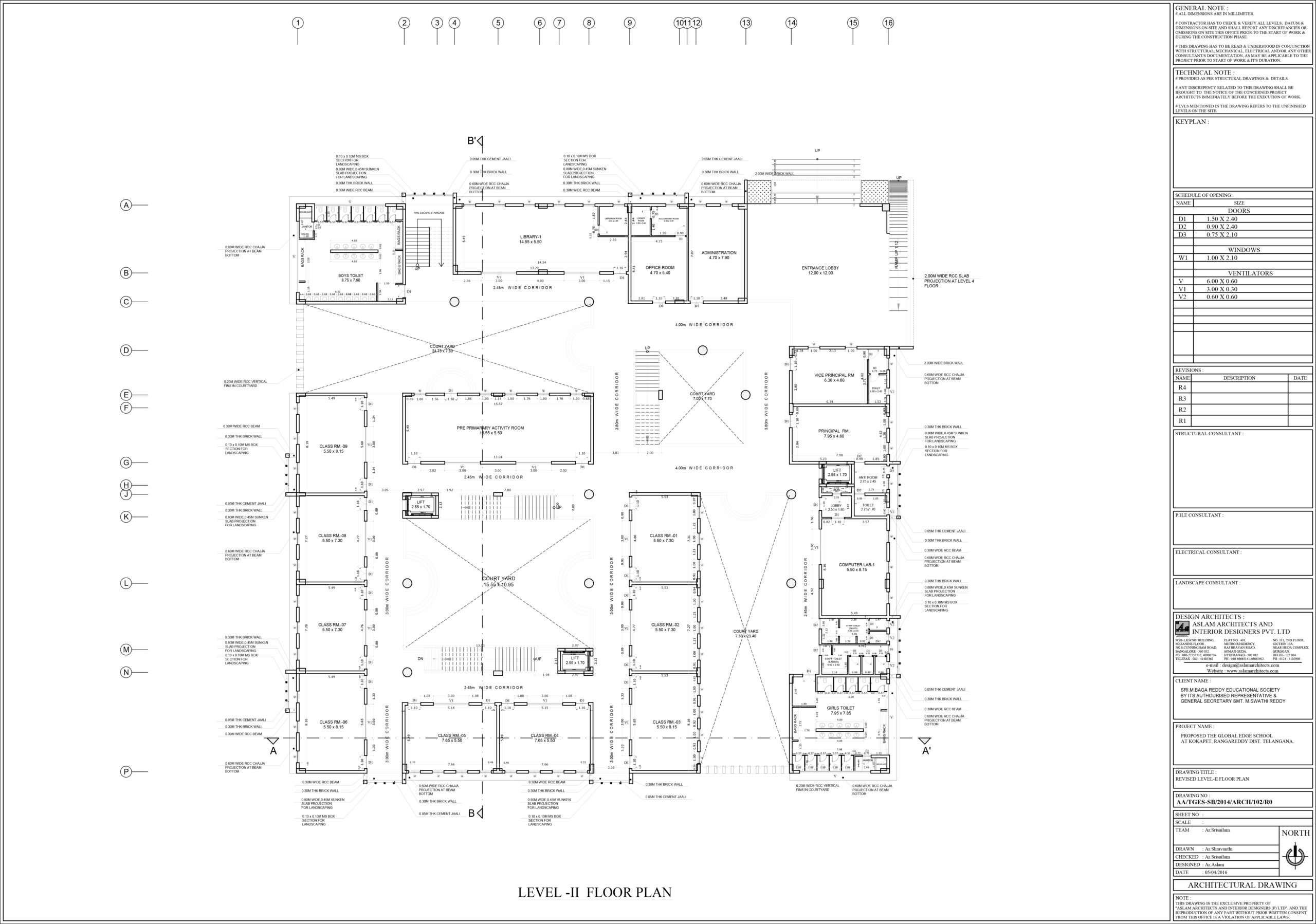
Level – II (Second Floor Plan)

  • Incorporates advanced learning spaces and specialized rooms such as computer and science labs.

  • Adequate open spaces and courtyards enhance natural lighting.

  • Separate washroom areas, teacher lounges, and administration sections.

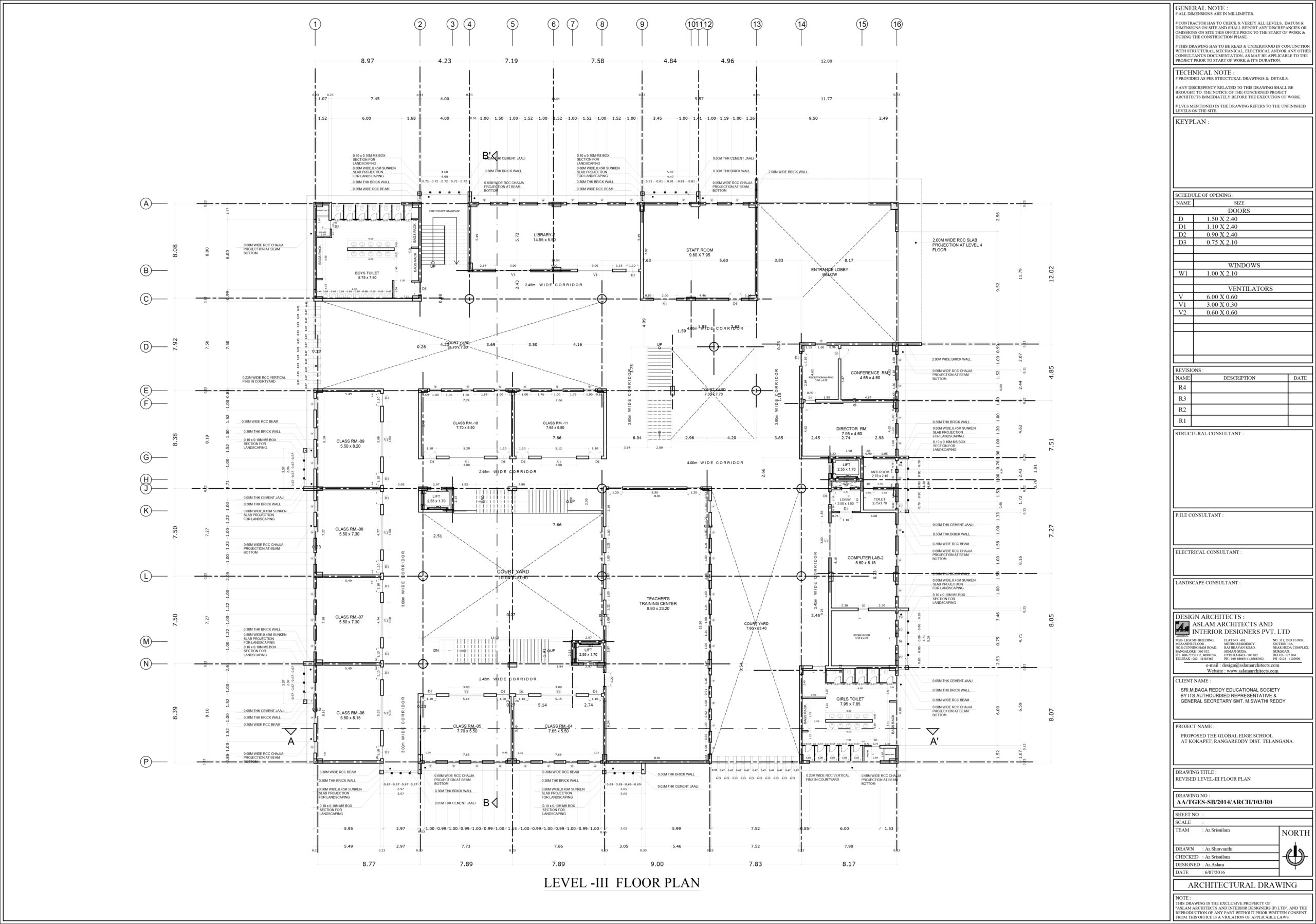
Level – III (Third Floor Plan)

  • Includes additional classrooms, meeting rooms, and student activity areas.

  • Proper beam-column alignment ensures robust structural integrity.

  • Integration of reinforced concrete framing and ventilation shafts.

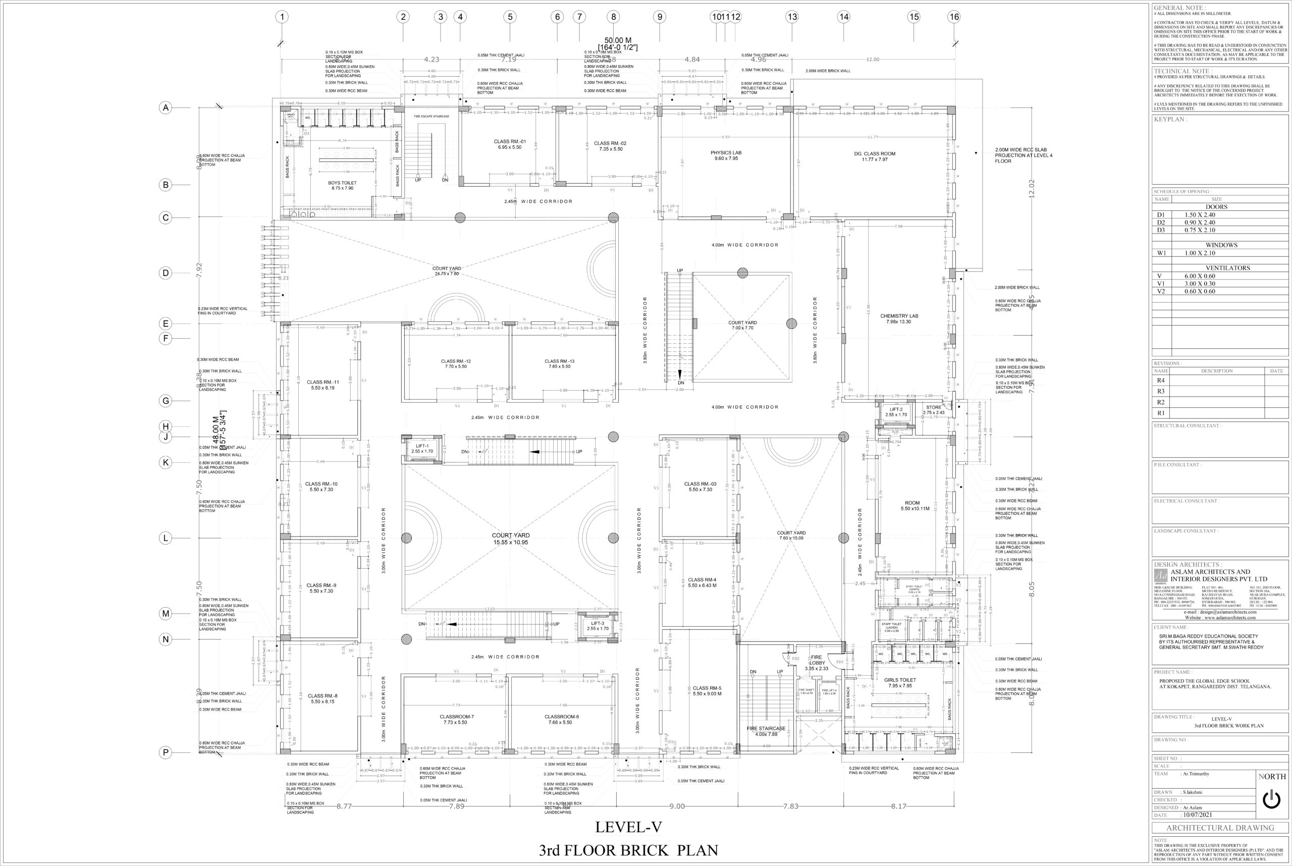
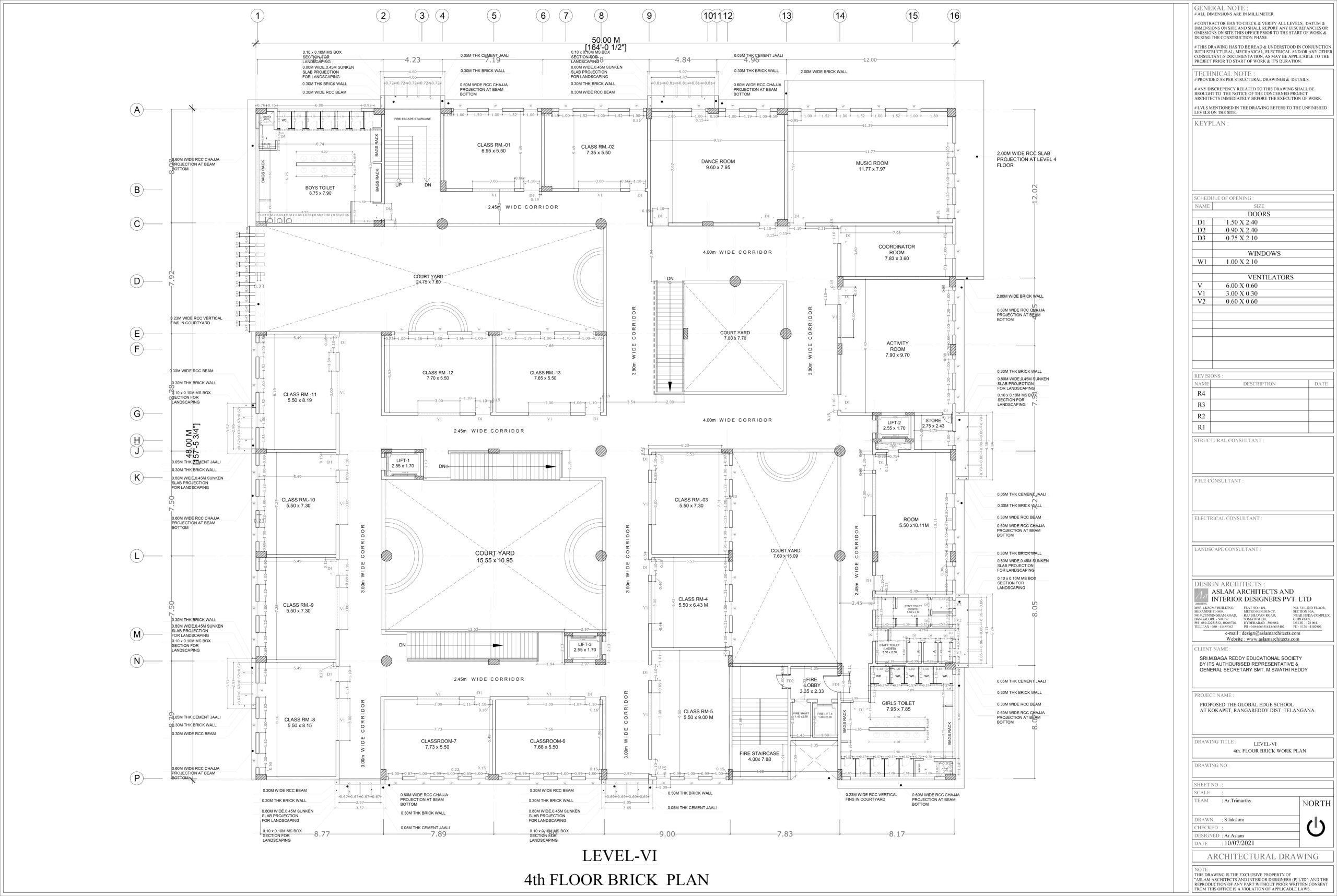
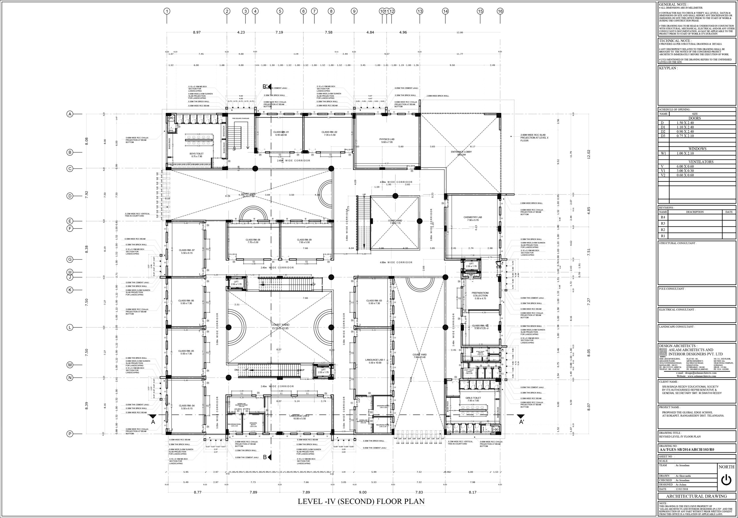
Level – IV (Fourth Floor Plan)

  • Dedicated for library, conference hall, and multipurpose training rooms.

  • Features terrace-level service areas, mechanical and electrical rooms.

  • Offers open learning zones to encourage collaborative student engagement.


 Structural & Design Highlights

  • Architectural Design: By Design Architects and Interior Designers Pvt. Ltd., Hyderabad.

  • Structural System: Reinforced Concrete Framed Structure with column grid optimization.

  • Ventilation: Natural and mechanical ventilation strategies combined.

  • Safety: Fire exits, wide corridors, and safe stairway placement as per norms.

  • Sustainability: Provisions for rainwater harvesting and energy-efficient lighting.


Vision

This project reflects a commitment to education and excellence, offering students a modern, safe, and inspiring environment for learning and growth. PR Home Builds takes pride in executing every stage with precision — from civil works to final finishing — ensuring top-quality construction and timely delivery.

project gallery

location

Kokapet, Hyderabad

Status

Completed

Buildup Area

G+4 School Building (Block R3)

Client Name

MBR

Madhavam Residence

The Madhavam Residence is a thoughtfully designed contemporary home that perfectly blends functional architecture with aesthetic elegance.